Spring 2024

The | Avenue

NoMi Community Center

The | Avenue was designed as a climate-resilient youth community center for the North Miami Beach Community. Located on a previously vacant lot across Collins Avenue from the North Beach Oceanside Park, the project aims to connect the community through sustainable design, recreational amenities, and thoughtful integration with its natural surroundings.

The Avenue consists of two buildings linked by a second-story breezeway that houses a garden open to the sky, creating a seamless connection between indoor and outdoor spaces. The breezeway, along with the landscaped pathways below, forms a new “avenue,” uniting the building’s various functions within a shared outdoor commons. Essential and recreational spaces, including an improved skate park, cater to the needs of the community while honoring the site’s past.

Inspired by the local climate and South Florida’s natural landscape, the design incorporates native vegetation, layering lush greenery around and within the building. The façade features indoor outdoor common spaces that embrace Miami’s tropical environment, while the landscaping restores elements of the region’s historic barrier island ecology.

The Avenue seamlessly blends architecture, nature, and community, creating a vibrant and resilient hub for North Miami Beach residents to gather, grow, and thrive.

With partner Benjamin Pollak & under the guidance of Professor Elizabeth Cardona


Main Elevation Render

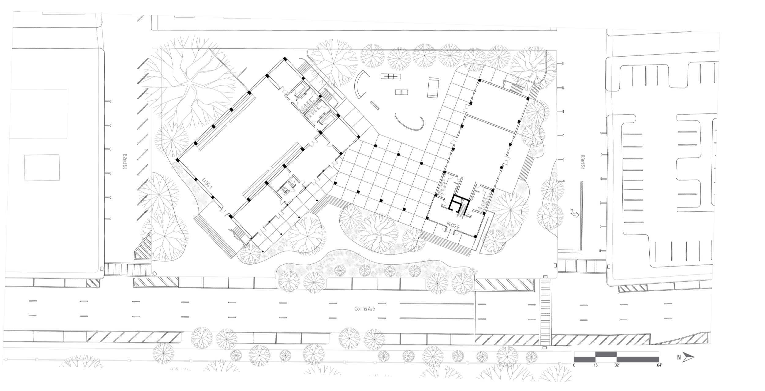
site plan & ground floor plan

83rd Street [SouthWest] Elevation

Collins Ave [East] Elevation


structural systems exploded axonometric


2nd Floor Breezeway Render

roof plan

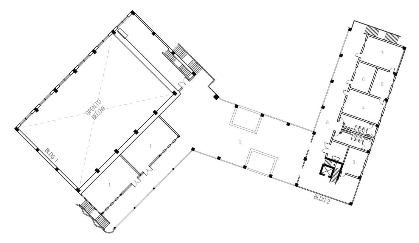
2nd floor plan

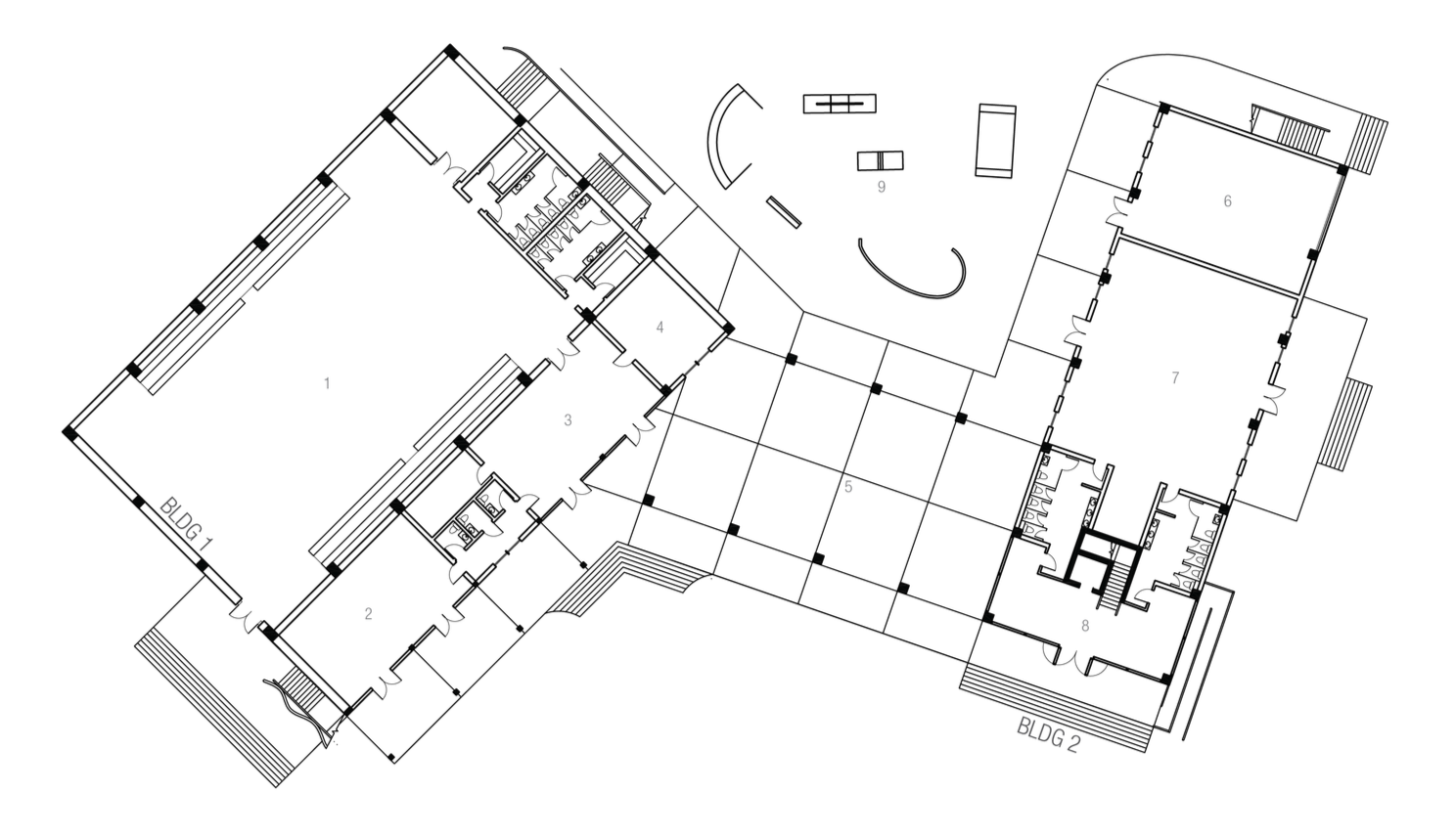
1st floor plan

Gymnasium Render


Section A

Section B

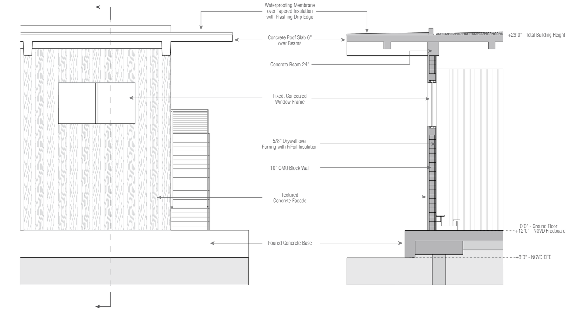
Section/Elevation Detail A

Section/Elevation Detail B


2nd Floor Breezeway Render

Axial

Galleria Vita

The Neighborhood