A Courtyard Style Home

axial

Spring 2023

During a semester focused on the 15 minute city and neighborhood design, students were tasked with curating a district that balanced a variety of housing and mixed-use building typologies. The first project involved developing a 120’ x 120’ site, subdivided into lots to create a single-family home.

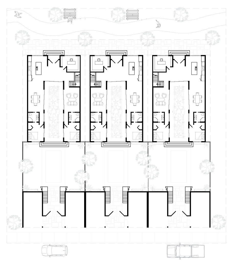
Axial is a courtyard-style home driven by a design concept rooted in axis and symmetry. The longitudinal axis defines each lot, serving as the primary symmetry line for the structure while aligning entry points with interior courtyard spaces. The transverse axis, which spans across all three lots, introduces a more traditional lawn and water feature. The design incorporates dynamic rooflines, with peaks and valleys that follow the longitudinal axis, creating a rhythm that complements the overall symmetry. Overhangs extend outward, providing shading and weather protection while enhancing the home’s connection to the outdoors. At the heart of the home, the roofline subtly separates to highlight the central green garden axis, drawing attention to the unique character of this focal space and reinforcing the seamless integration of nature within the design.

Under the guidance of Professor Eric Firley


pedestrian facade

full ground floor plan

street facade

1st floor

2nd floor

longitudinal section


Rear Courtyard Render


pedestrian facade render