Fall 2023

GAlleria Vita

A Contemporary Arts Center

Galleria Vita e Arte Nuova is a contemporary art center located within the largest historic structure on the Island of Sant’ Helena in Venice, Italy. Collaborating with my project partner, Sarah Hernandez, the adaptive reuse project aimed to seamlessly blend the existing light industrial brick warehouses with a new structure that reflects and respects the Venetian Architectural identity.

The design of central connecting structure draws inspiration from the unfinished facades commonly seen on churches or other older buildings in Venetian Campos. Its asymmetrical facade, with a smooth, detail-free surface that contrasts starkly with the surrounding brick and tile, serves as both a focal point and an homage to Venice’s layered Architectural history. This design choice not only emphasizes the entry but also creates a welcoming and familiar environment within the campo, establishing a dialogue between the old and new. Allowing all elements of the space to work together and celebrate the timeless character of Venetian spaces.

With partner Sarah Hernandez & under the guidance of Professor Roberto Behar


elevations

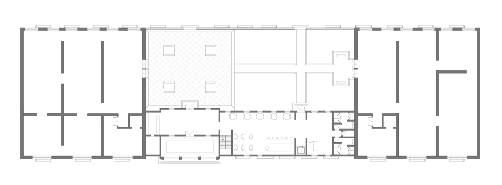
ground floor plan

2nd floor plan

site plan

longitudinal section

latitudinal section


gallery render

cafe render